Așa ar putea arăta clădirea viitoarei Judecătorii Cahul și Curți de Apel Sud

Așa ar putea arăta clădirea viitoarei Judecătorii Cahul și Curți de Apel Sud

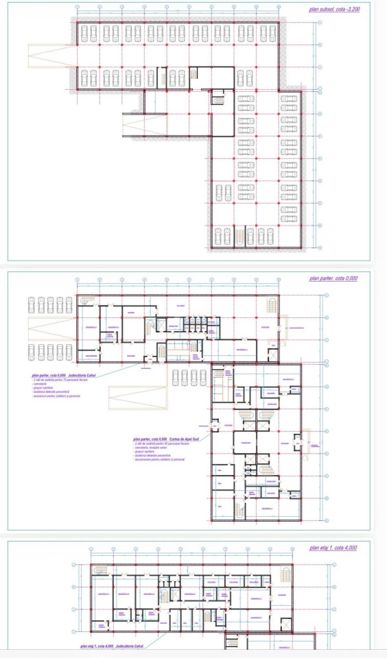
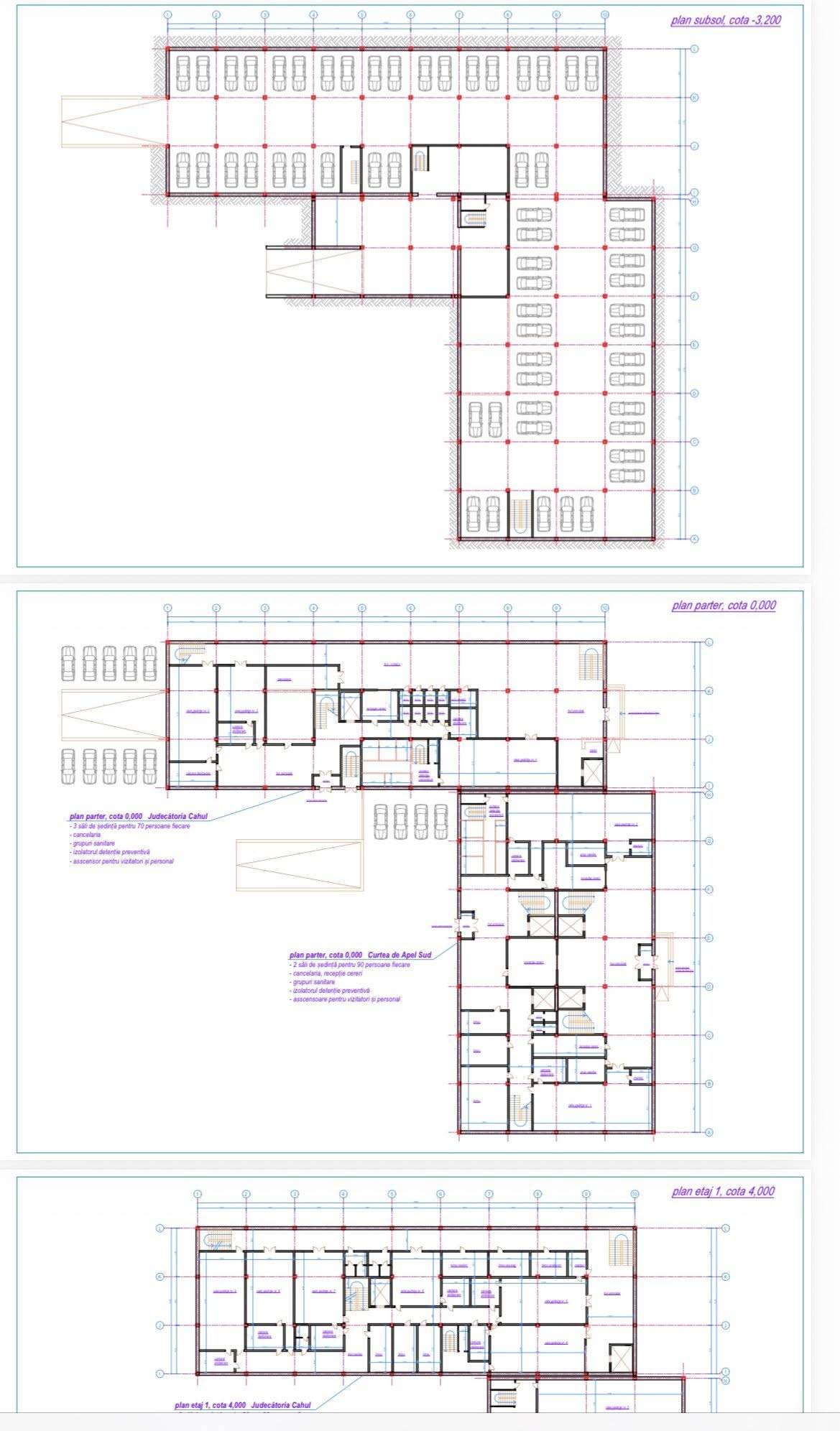
Primarul municipiului Cahul, Nicolae Dandiș, a prezentat recent cum va arăta viitoarea clădire care va găzdui Judecătoria Cahul și Curtea de Apel Sud. Edificiul va fi amplasat pe strada Ion Neculce nr.6, iar studiul de fezabilitate a fost finalizat la comanda Agenției Digitalizare în Justiție și Administrare Judecătorească din cadrul Ministerului Justiției al R. Moldova.

Noua clădire va avea subsol, parter și 5 etaje, și va include atât birouri administrative, cât și săli de ședință pentru judecători:

Anunțuri de pe piatasud.md
  • Judecătoria Cahul: 19 săli de ședință pentru cei 18 judecători;
  • Curtea de Apel Sud: 8 săli de ședință pentru cei 16 judecători.

Următoarea etapă prevede lansarea licitației pentru proiectarea tehnică, urmată de licitația pentru lucrările de construcție. Primarul speră ca Guvernul să aloce resursele financiare necesare pentru realizarea acestui obiectiv regional important.

ziuadeazi.md
Susțineți financiar proiectul nostru